Skip to main content


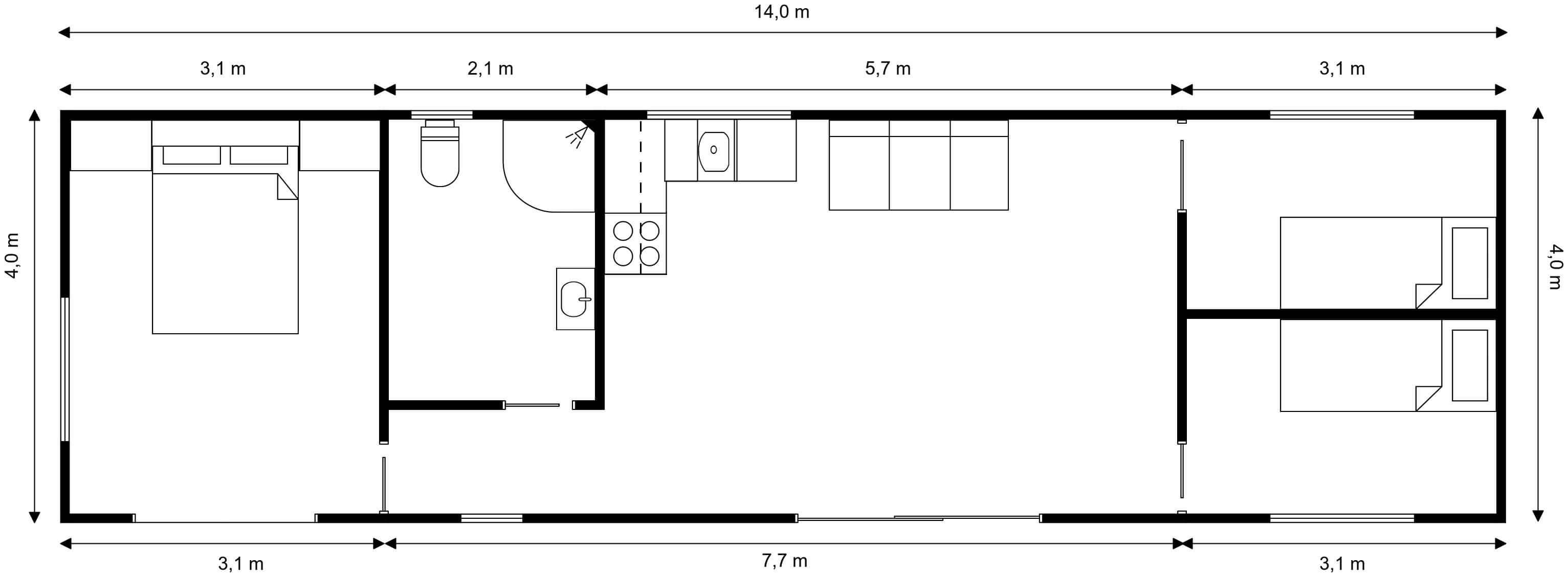
14m Economy Tiny Home

Two and three bedroom options

With two or three-bedroom layouts to choose from, this spacious 14m Economy tiny home is designed to give you all the essentials of modern living without compromise. Each home includes a bathroom, kitchenette, and open-plan living space — making day-to-day life both comfortable and convenient.

  • Prices include GST

  • Optional extras not included

14x3 two bedroom from $79,000

14x4 three bedroom from $99,800

What you can expect

We have hand selected each of the materials and finishes for our tiny homes, selecting items we would choose for our own home. We have focused on quality products that provide longevity, easy maintenance and a home appeal. 

All products and materials used are NZ, Australasian and European made.  We also support our local businesses where possible before sourcing elsewhere.

Standard features

  • Steel frame base

  • Fully Insulated as below;
    - NZ 100mm EPS panels for walls & ceiling
    - Expol R1.8 underfloor

  • NZ Double Glazed Joinery

  • Electrically certified & EWOF
    - Double plugs & Light switches
    - LED interior & Exterior lights
    - 32AMP outdoor power inlet

  • Vinyl plank flooring

  • 900x900 shower

  • 600w vanity

  • Toilet

  • Basic 1.8 kitchenette

  • Califont

  • Plumbing & Gas certified

    We offer a wide range of optional extras that can be added to personalise a build. These enhancements are available at an additional cost and will be clearly outlined and discussed during the quoting process.

Optional extras

  • Curtains/Blinds

  • NZ Coloursteel facelift

  • Interior lining

  • TV Bracket/aerial

  • Kitchen upgrade

  • Joinery

  • Window tints

  • Carpet

  • Lino

  • Heat pump

  • Extra lighting

  • Extra power outlets

  • Smoke alarms

  • A&C USB ports

  • Custom closets/storage

  • Deck/pergola/awnings/steps

  • Trailer

  • Other